Peacefully tucked away to the rear of a beautifully maintained security complex, this spacious apartment enjoys tranquil leafy outlooks and a sunny north facing orientation. It's perfectly located for a lifestyle of exceptional modern convenience and rapid city access, while offering outstanding investment prospects. The property is set within a short stroll of city buses, Cammeray village cafés and Harris Farm Markets, while being close to a selection of vibrant Crows Nest dining options.
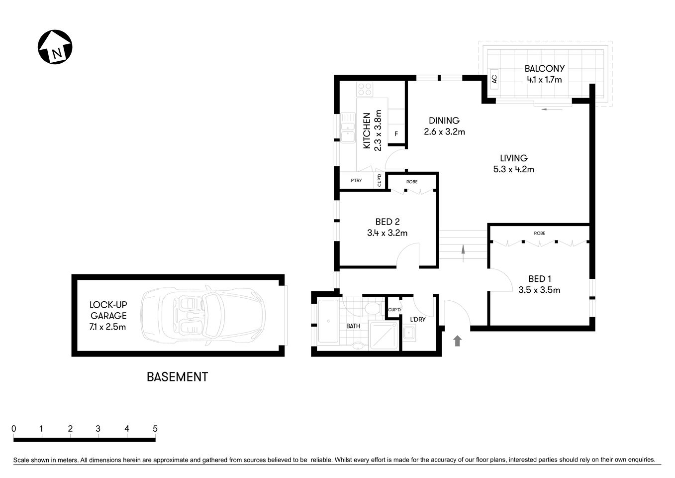
- Private elevated setting in a double brick building amid landscaped gardens
- Light filled open plan interiors feature distinct lounge and dining areas
- Layout extends to a north facing balcony gazing over the surrounding trees
- Kitchen features stone benches, quality appliances and a Miele dishwasher
-Two bedrooms with built-ins and a spacious bathroom with separate bath/shower
- Includes a lock-up garage, brand new carpeting and an internal laundry room
This property is scheduled to go to Auction onsite. Registered bidders will be given priority to attend the auction before spectators due to potential social distancing requirements. If you intend on registering, please contact the agent to discuss proceedings.
This property is available for viewing by either attending the scheduled open homes or by private viewing should this be your preference. All necessary measures have been put in place to adhere to the recent Government regulation and to protect the health and safety of all parties. For more information please contact the listing agent.
10/390 Miller Street Cammeray
















