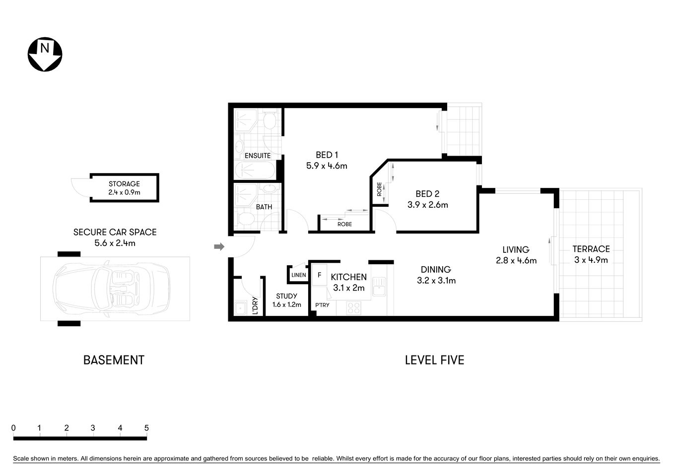
Set to enjoy the tranquillity of its rear block position, this oversized apartment is located on the fifth floor of a modern security complex with 115sqm on title. Expansive bright and airy open plan living and dining open to a sun-filled balcony with leafy outlooks superb for entertaining. Handy study nook for your home office. Its convenient location is close to Chatswood CBD and Metro Station, just a short walk to Artarmon village and train station. 650m from Chatswood Public and High School.
- Gas kitchen with stainless steel appliances and dishwasher
- Sun-filled private tranquil balcony with garden beds.
- Huge master opens to private balcony, ensuite with bathtub. All bedrooms with built-ins
- Secure car space plus lock-up storage, internal laundry and study
- Well maintained security building with lift access and video intercom
- Sought after Chatswood Public and High school catchment area
This property is available for private viewing, and may also advertise an open time. All necessary measures have been put in place to adhere to the recent Government regulation and to protect the health and safety of all parties. For more information please contact the listing agent.
32/552 Pacific Highway Chatswood













