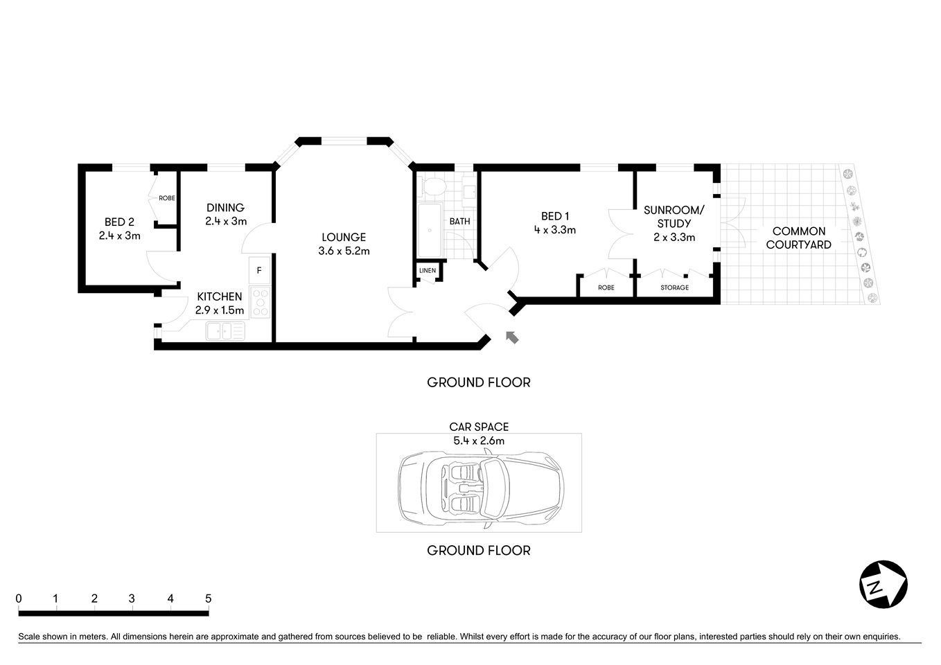
Offering a generous ground floor floorplan similar to a semi, with a coveted northerly aspect, this sunlit Art Deco apartment enjoys a vibrant lifestyle with direct access to entertainers' courtyard and garden. Updated interiors, newly polished timber floorboards, and period features throughout. Premier location with easy access to the city, Neutral Bay Village, and a short stroll to harbourfront Primrose Park.
- Well maintained stylish interiors include good sized lounge and dining
- Art deco character features throughout, in "Booyong", a block of four
- New gas kitchen with European appliances and ample storage
- Double sized sunlit master bedroom has built-ins and sunroom
- Direct access to north facing entertainers courtyard and garden
- Good amount of storage, new paint, smart neutral tones throughout
- Scope to alter floorplan (STA) and further enhance value
- A highly convenient setting with easy access to the city and buses
- Level access to the apartment and single car space at rear of property
- Moments to Primrose Park and picturesque Harbour walks
3/49 Earle Street CREMORNE














