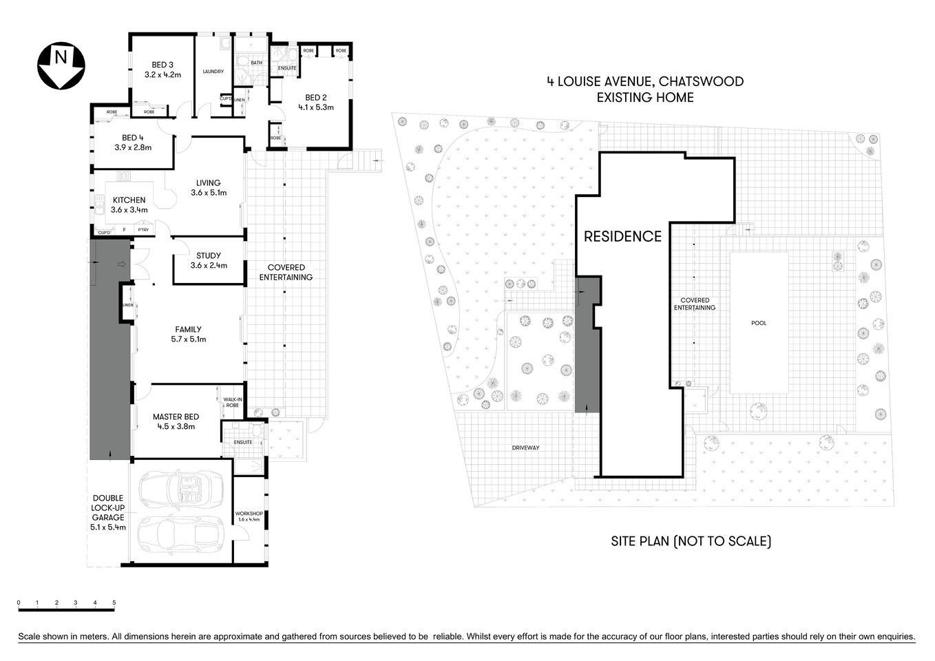
Situated in a quiet, leafy location, this home boasts a flexible floorplan that would suit a variety of lifestyles, and family types. The home is extremely neat, and tidy. This level land is over 1334 sqm and frontage of over 36 metres. Low level maintenance home, also with a resort style swimming pool. Easy access to Chatswood CBD, schools and transport. The property has an added bonus, with a Development Approval to build two separate houses valid until November 2022.
 - Over 1,134 sqm of level land
- Impressive 36 metre frontage
- Live in or redevelop
- Resort style living
- Excellent opportunity for future growth
- Approved for two separate homes on separate title
- Extremely rare opportunity in a sought after location
This property is available for private viewing, and may also advertise an open time. All necessary measures have been put in place to adhere to the recent Government regulation and to protect the health and safety of all parties. For more information please contact the listing agent.
4 Louise Avenue Chatswood















