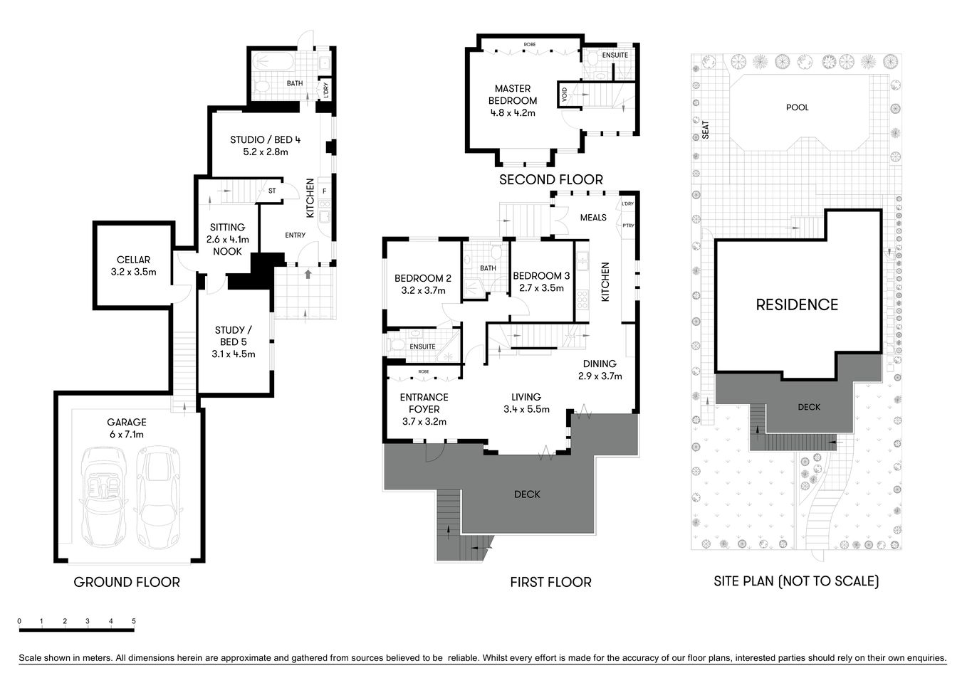
Commanding a highset position in a premier enclave, this captivating home is abundant in sunshine and offers treetop views to Northbridge over the glistening waters of Middle Harbour. Beautiful finishes and high end appointments work together to create an atmosphere of timeless grace and contemporary comfort, with a self-contained lower level studio space adding vast lifestyle potential. Boasting an address of privacy and prestige, its cul-de-sac setting is moments from local schools, shops and cafés.
- Selection of sun washed indoor/outdoor living areas, sleek stone/gas kitchen
- Entertainers' deck set against natural backdrop, inviting poolside terrace
- Elegant bathrooms, flexible study/home office, private top floor master suite
- Separate entry to downstairs studio featuring kitchen, bathroom and laundry
- Classic timber floorboards, high ceilings, air conditioning, C-Bus automation
- Newly refreshed, cellar hewn into sandstone, internal entry from dual garage
31 Ryries Parade CREMORNE























