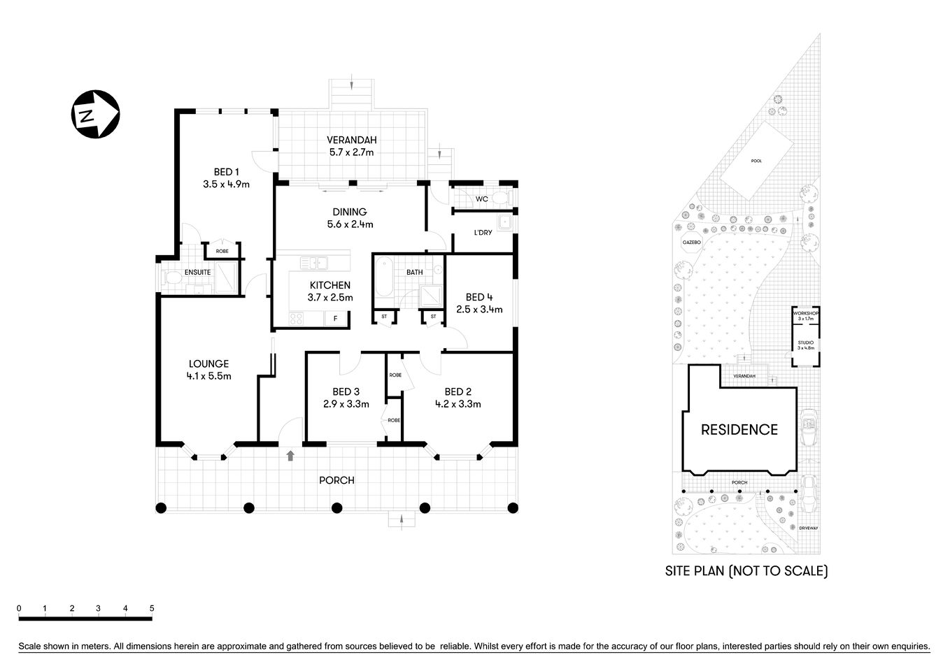
Ideally positioned family homes set on 904m2 of land. This charming property presents an outstanding opportunity to capitalise on the enormous block ideal for growing families. Conventionally positioned to major amenities.
- Stunning street presence with sunny verandah surrounded by gardens
- Polished timber flooring
- Large lounge room with beautiful bay windows
- Spacious kitchen with ample storage flows to family living/dining
- Family living opens through double glass sliders to rear
- Extensive grounds incorporate covered alfresco entertaining deck encompassing district views spanning Chatswood to the Blue Mountains
- Deck leads to extensive child friendly fully fenced grassed yard
offering a perfect aspect and low maintenance
- Sun soaked and private pool
- Four bedrooms with bright aspects and storage
- Master suite features hidden ensuite and private access to the backyard
- Neat main bathroom with separate bath and shower
- Convenient separate guest toilet
- Separate versatile studio or storage room
- Ducted underfloor gas heating throughout
This property is scheduled to go to Auction privately onsite. Only registered bidders are to participate either in-person or through our online Auction platform where you can bid and or watch the Auction. If you intend on registering, please contact the agent to discuss proceedings.
This property is available for private viewing, and may also advertise an open time. All necessary measures have been put in place to adhere to the recent Government regulation and to protect the health and safety of all parties. For more information please contact the listing agent.
55 Prince Charles Road Frenchs Forest
















