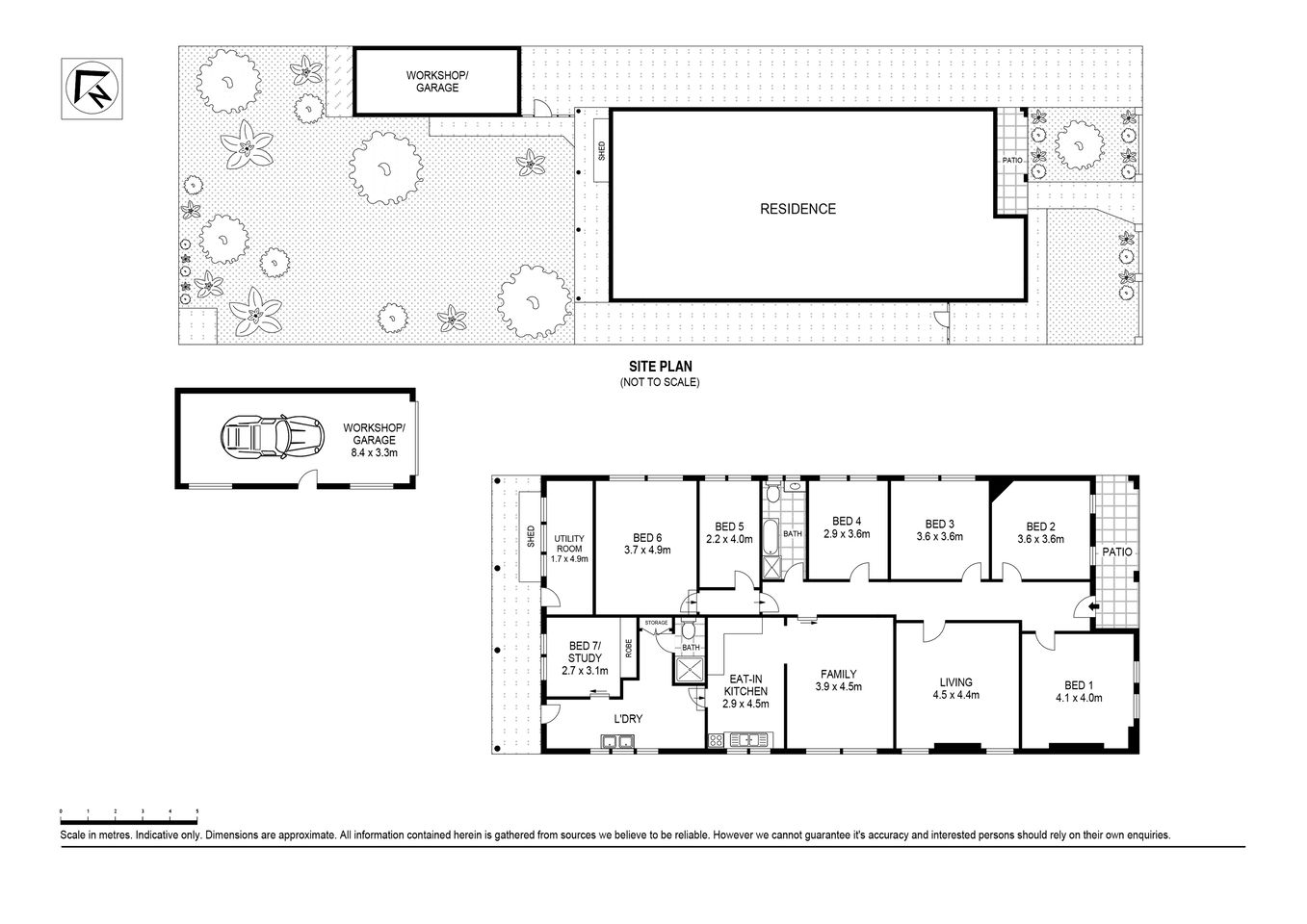
After nurturing a family for 50 years, this turn-of-the-century home is ready to establish a new legacy on this premium 815.7sqm block. The potential for a luxurious lifestyle is immense, as the current design offers up to seven bedrooms, yet still has space for a sprawling level garden the entire family will adore. Placed in a line of impressive homes right opposite Haberfield Public, this superb discovery is an easy walk from the beloved village hub and The Bay Run, while only 9kms from the city.
- Solid home with classic double-fronted design and ceilings reaching 3.2m
- Multiple living spaces plus a tidy original kitchen offering abundant storage
- Versatile layout of seven rooms ready to match the family's changing needs
- Vast child-friendly garden with fruiting trees, storeroom and garage/workshop
- Undertake cosmetic repairs, renovate or design/rebuild a luxury home (STCA)
- Haberfield Village is renowned for excellent restaurants, cafes and amenities
This property is scheduled to go to Auction onsite. Registered bidders will be given priority to attend the auction before spectators due to potential social distancing requirements. If you intend on registering, please contact the agent to discuss proceedings.
This property is available for viewing by either attending the scheduled open homes or by private viewing should this be your preference. All necessary measures have been put in place to adhere to the recent Government regulation and to protect the health and safety of all parties. For more information please contact the listing agent.
154 Bland Street Haberfield















