A rare opportunity to buy in one of Paddington's most tightly held streets, this elegant Victorian terrace makes an instant first impression with its gabled facade and 5.7m frontage. Set on the high side of the street, just around the corner from Five Ways village hub, the two storey terrace is set on a sunny 139sqm block with rear lane access to parking. All the classic Victorian charm is on display with high ceilings, polished floorboards and iron lace balconies with two living areas and an easy indoor/outdoor flow. The first time on the market in over 30 years, the three bedroom home is comfortable as is while offering scope to transform and add value capitalising on its exclusive setting on a wide street close to the buzz of Oxford Street and the leafy tranquility of Trumper Park.
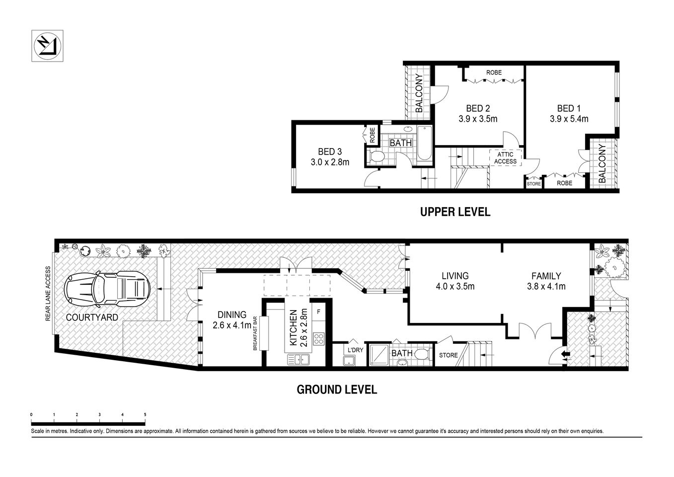
- Wide frontage with an entry hall and polished hardwood floors
- 3 large bedrooms on the upper level all with built-in robes
- 2 with a balcony, king-sized master with a north facing balcony
- Traditional living and dining rooms, high ceilings, northerly sun
- Separate study, Spanish terracotta tiled floors, internal laundry
- Modern gas kitchen and casual living/dining opens outdoors
- Entertainer's courtyard, convenient rear lane access to parking
- 2 full bathrooms, Carrara marble family bathroom with a bath
- Glenmore Road Public School catchment, 250m to Five Ways
This property is scheduled to go to Auction onsite. Registered bidders will be given priority to attend the auction before spectators due to potential social distancing requirements. If you intend on registering, please contact the agent to discuss proceedings.
This property is available for viewing by either attending the scheduled open homes or by private viewing should this be your preference. All necessary measures have been put in place to adhere to the recent Government regulation and to protect the health and safety of all parties. For more information please contact the listing agent.
23 Suffolk Street Paddington

















