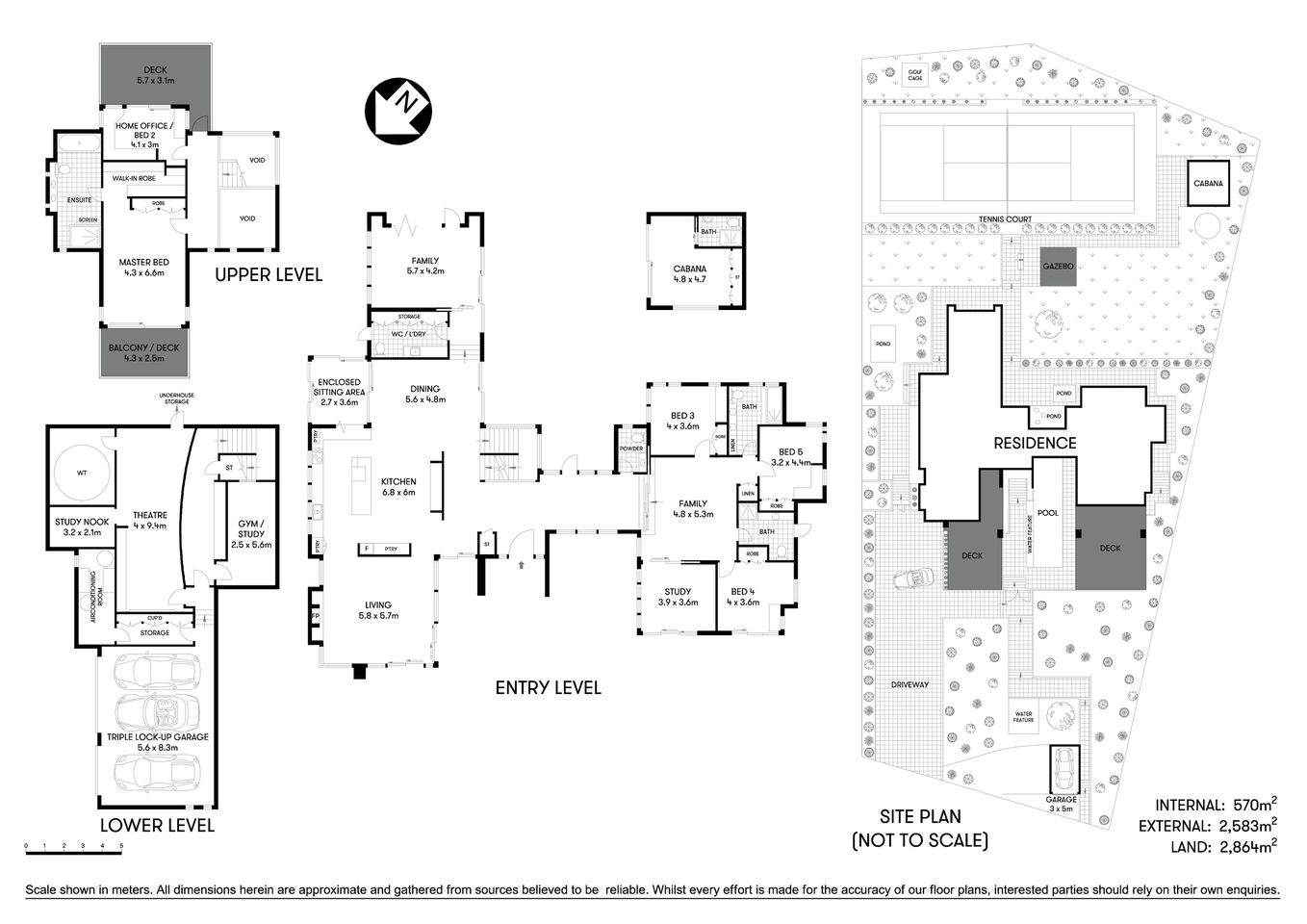
Providing the highest standard of luxury, this Castlepeake architecturally designed residence captures Middle Harbour views from a private waterside estate. Sprawling across 2,864m² of professionally landscaped grounds, it's complete with a heated infinity pool, championship tennis court and putting green. Offering all-season entertaining, this impressive residence flows seamlessly between indoor and outdoor spaces. Its premium address is footsteps from Sangrado Park and buses, plus it's moments from Seaforth shops.
- Casual and formal living/dining spaces, all with exceptional outdoor flow
- Designer kitchen boasting calacatta marble island bench and Miele appliances
- Media room, home office, five bedrooms and separate self-contained studio
- Opulent master suite complete with walk-in wardrobe and private terrace
- Four stunning bathrooms featuring floor-to-ceiling tiles and quality finishes
- Lower level gym or games room plus 4-car garage and storeroom with internal access
- Air conditioning, comprehensive security, built-in sound system, solar panels
In conjunction with Jake Rowe of Rowe Partners Real Estate 0414 612 546
This property is available for private viewing, and may also advertise an open time. All necessary measures have been put in place to adhere to the recent Government regulation and to protect the health and safety of all parties. For more information please contact the listing agent.
106-108 Seaforth Crescent Seaforth































