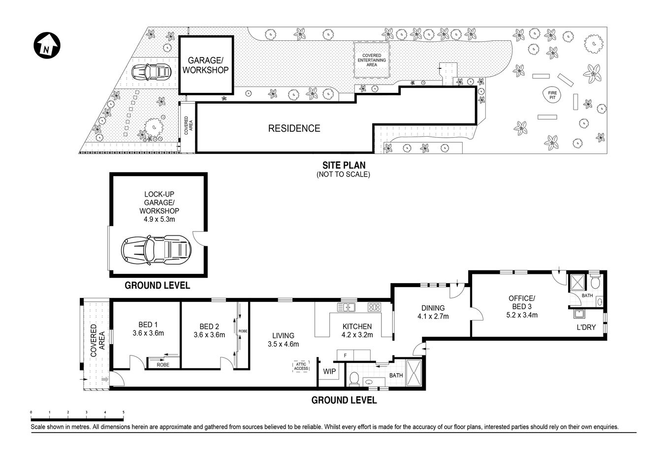
Merging c1908 traits with discerning upgrades, this wonderful home impresses with multiple living areas and a large established garden bathed in northerly light. Behind the modest façade, the flowing layout features well-scaled bedrooms, zoned living/dining and a superb gourmet kitchen, complemented by a flexible family retreat that can also serve as Bedroom 3. Resting on 553sqm, it is a quick 300m walk from Turrella Station and only minutes from cosmopolitan village conveniences at Discovery Point.
- High ceilings with original details in the hallway, timber/bamboo floors
- Entertaining area features superb kitchen with ILVE stove and walk-in pantry
- Sun washed garden with alfresco area, vege patch and abundant level lawn
- Stylish main bathroom, internal laundry, attic, garage plus extra car space
- Side access to family room that can also serve as bedroom or home practice
- Walk to Arncliffe Park, near Earlwood shops, choice of schools and airport
This property is available for private viewing, and may also advertise an open time. All necessary measures have been put in place to adhere to the recent Government regulation and to protect the health and safety of all parties. For more information please contact the listing agent.
12 Hannam Street Turrella















